About this property
                    
                    
                        
                            Key features
                            
                                - MINIMUM OF A 12 MONTH TENANCY
 
                                - FOUR DOUBLE BEDROOMS
 
                                - WALKING DISTANCE OF TOWN
 
                                - SET OVER THREE FLOORS
 
                                - THREE BATHROOMS
 
                                - GARDEN
 
                                - PARKING
 
                                - AVAILABLE LATE NOVEMBER
 
                                
                                
                            
                        
                    
                        
                            Description
                            
                            A contemporary, detached, four bedroom property forming part of a sought-after, award winning development within town. The property offers well-proportioned and versatile accommodation set over three floors, including open plan living space and a south facing rear garden.
Pavilion Way
Pavilion Way forms part of The Avenue, a high quality development constructed by Hill Residential, with contemporary, stylish design maximising natural lighting. The Avenue was awarded What House's Best Development of the Year 2014 and was rated Highly Commended in the category for best development of three storeys or fewer at the Housebuilder Awards 2014.
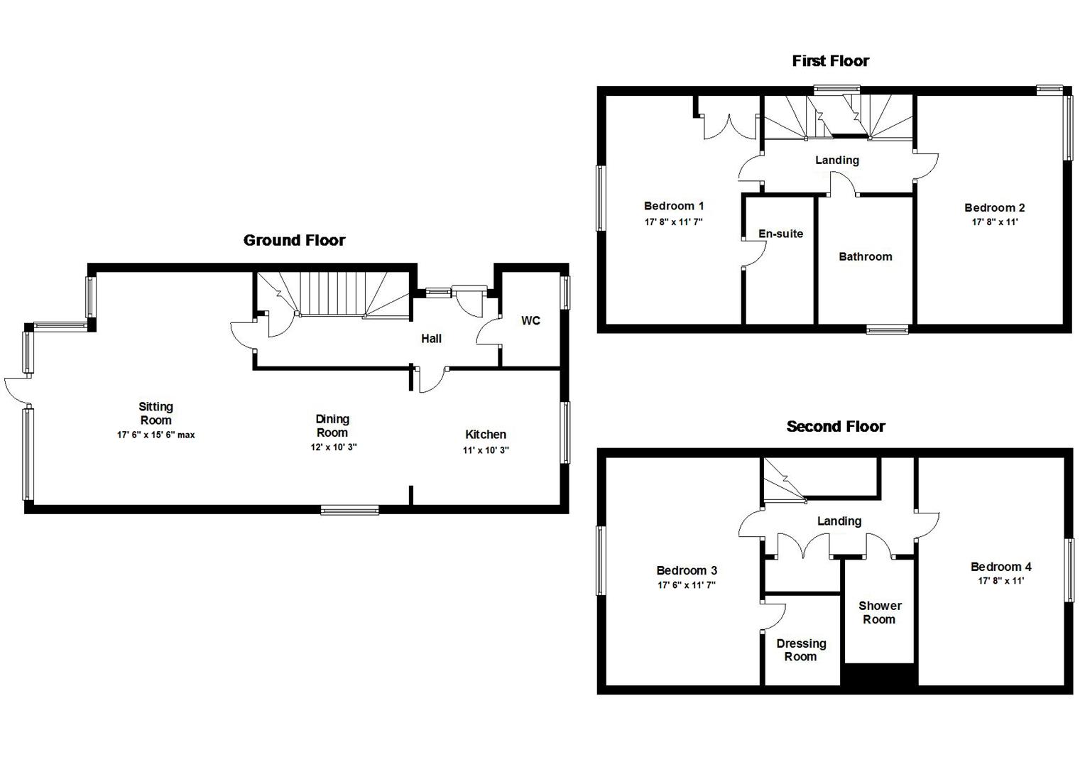
Ground Floor
Entrance Hall
Full height double glazed window adjoining the entrance door, staircase rising to the first floor landing with under stairs storage cupboard and doors to adjoining rooms.
W/C
Comprising low level WC with hidden cistern, wash basin, part tiled walls and obscure double glazed window.
Kitchen
Fitted with a range of contemporary base and eye level units with stone composite worktop space over, stainless steel sink unit, built-in eye level oven, hob with stainless steel splashback and extractor hood over, integrated fridge freezer and integrated dishwasher as well as space and plumbing for washing machine. Window to the front aspect and door returning to the entrance hall.
Lounge/Diner
A pair of double glazed doors with three adjoining full height windows provide a good degree of natural light and overlook the south facing garden. Fitted with a bespoke range of shelving and cupboards which house the entertainment system.
First Floor
Landing
Staircase rising to the second floor and corner window to the front and side aspect.
Bedroom One
Window to the rear aspect overlooking the south facing garden. Built-in wardrobe and door to:
En Suite
Contemporary suite comprising low level WC with hidden cistern, wash basin, shower enclosure, part tiled walls, tiled flooring and heated towel rail.
Bedroom Two
Large double glazed window with views over The Avenue.
Bathroom
Contemporary suite comprising low level WC with hidden cistern, wash basin, shower enclosure, panelled bath, part tiled walls, tiled flooring and heated towel rail.
Second Floor
Landing
Built-in airing cupboard with pressurised hot water system.
Bedroom Three
Window to the rear aspect. Door to:
Walk in Dressing Room
Fitted with hanging rails and shelving.
Shower Room
Contemporary suite comprising low level WC with hidden cistern, wash basin, recessed shower enclosure, part tiled walls, tiled flooring and heated towel rail.
Bedroom Four
Window to the front aspect.
Outside
6 Pavilion Way forms part of a well-designed and thought out development. To the front of the property are two block paved parking spaces and in addition there is visitor parking close by. There is side access to the rear garden which also provides a useful bike/bin storage area. To the rear of the property is a south facing rear garden which has a paved terrace, a small lawn and large timber shed.
Viewings
Strictly by appointment through the agent.
Material Information
Holding Deposit : £576.00
For more information on this property please refer to the Material Information brochure on our Website.
                             
                        
                    
                        
                            
                                
                                    
                                        Get in touch
                                        
                                        
                                        
                                                
                                                
                                                
                                                Saffron Walden Lettings
8 Hill Street
Saffron Walden
CB10 1JD
Essex
                                             
                                            
                                            
                                            
                                            
                                         
                                        
                                     
                                 
                             
                         
                    
                    View similar properties