About this property

Key features
  • Well Presented Detached Family Home
  • Easy access to A11/A14 and Kennett Train station
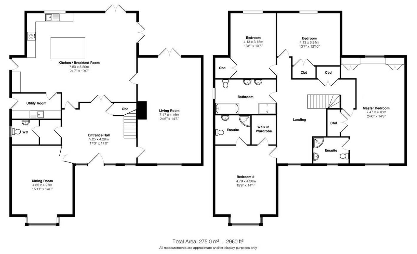
  • Spacious Accommodation over 2,900 sq ft
  • 2 Large Reception Rooms
  • 4 Double Bedrooms - 2 Ensuites
  • South-Facing Landscaped Gardens
  • Stunning Countryside Views
  • Private cul-de-Sac Location
Description
An immaculate family home, beautifully positioned in a small semi-rural cul-de-sac with far-reaching countryside views to the rear. Conveniently located between Newmarket and Bury St Edmunds, the property offers excellent transport links via the A11, A14, and Kennett train station, providing direct access to both Cambridge and London. The accommodation extends to over 2,900 sq. ft. and includes 2 generous reception rooms, a luxury fitted kitchen/breakfast room, a spacious entrance hall and first floor landing, 4 double bedrooms, 2 ensuites and a large family bathroom. Externally, the home benefits from a South facing landscaped garden, a double garage, and a private driveway. Viewing Essential.

ENTRANCE HALL A spacious entrance hall with stairs to first floor, tiled flooring, under stairs storage cupboard and glazed double doors leading through to;

KITCHEN/BREAKFAST ROOM A bright and spacious room with a kitchen designed and fitted by Nicholas Anthony comprising a range of base and wall mounted units with Quartz work surfaces over, integrated fridge/freezer and dishwasher, built-in eye level double oven with grill, electric hob with concealed extractor over, breakfast bar island, window overlooking the rear garden and 2 sets of French doors leading to side and rear.

LIVING ROOM A dual aspect room with a window to front aspect and French doors leading to rear patio, electric feature fireplace and door leading into kitchen/breakfast room.

DINING ROOM with a bay window to the front aspect.

UTILITY ROOM with a range of base units with roll top work-surface, inset stainless steel sink and drainer, space and plumbing for washing machine and tumble dryer, wall mounted gas boiler, tiled floor and door leading out to the side aspect.

CLOAKROOM with a low level WC, hand wash basin, tiled floor and window to the side aspect.

FIRST FLOOR LANDING with a window to the front aspect, airing cupboard with pressurised water tank.

PRIMARY BEDROOM A dual aspect room with windows to the front and rear aspects, a range of built-in wardrobes and drawer unit, built-in dressing table, further built-in storage cupboard.

ENSUITE SHOWER ROOM with corner shower cubicle, low level WC, hand wash basin, tiled walls and flooring, heated towel rail and window to the front aspect.

BEDROOM 2 with a bay window to the front aspect, walk-in wardrobe.

ENSUITE SHOWER ROOM with a corner shower cubicle, low level WC, hand wash basin, tiled walls and floor, heated towel rail and a window to the side aspect.

BEDROOM 3 with a built-in double wardrobe, window to the rear aspect.

BEDROOM 4 with a built-in double wardrobe, window to the rear aspect.

FAMILY BATHROOM with a whirlpool bath, walk in double shower cubicle, twin sinks, low level WC, tiled walls and floor, heated towel rail.

OUTSIDE To the front of the property is a long block paved driveway leading to the garage with laid to lawn gardens and a variety of shrubs. Under ground Avanti gas tank.

Gated access leads to a beautifully landscaped South facing rear garden mainly laid to lawn with a generous patio area, flower and shrub beds with the bottom of the garden offering a Tuscan theme.

DOUBLE GARAGE with power and lights, pedestrian door to the side aspect.

Sales Agents Notes Access to the property is via a private road, owned by a management company in which the five owners of Elevenways act as directors. An annual fee of £400 is payable for the upkeep of the road and communal grounds.

For more information on this property, please refer to the Material Information Brochure on our website.

Get in touch

2, Black Bear Court, Newmarket, CB8 9AF, Suffolk

View similar properties