More Menu

Search our site using the box above

No pages found - please try again

Residential Sales & Lettings
Property Auctions
Commercial Property
Rural
Land, Development, Planning & New Homes
Machinery & Vintage Auctions
Fine Art Auctions
  • For advice worth taking, it pays to choose Cheffins.

    Cambridge | Ely | Haverhill | Newmarket | Saffron Walden | Sutton | London

    Value my property

£385,000
3 Bedroom
Rowntree Way, Saffron Walden
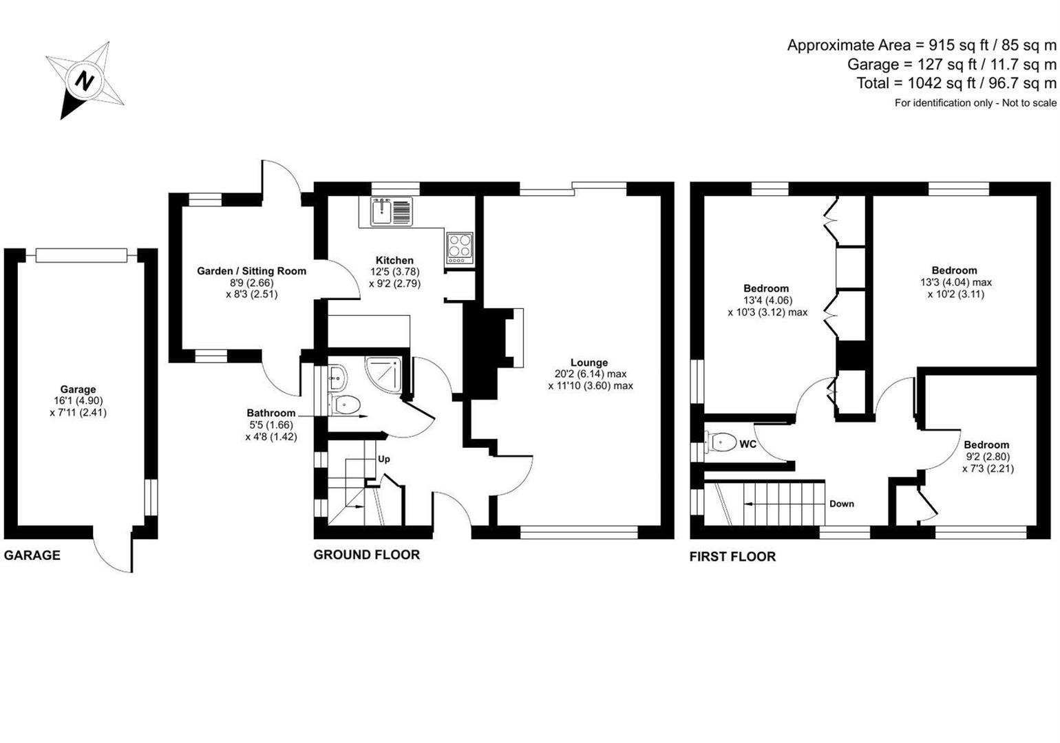
915 sq ft
3
1
2

About this property

Key features
  • No onward chain
  • Three bedrooms
  • Detached garage and parking
  • Private garden
  • Recently refitted kitchen
  • Popular residential location
  • Scope for enlargement STP
Description
A well appointed three bedroom semi-detached home positioned in a popular residential location within the town. Enjoying private rear gardens, the property also benefits from detached garage, off street parking space and recently refitted kitchen. Offered chain free.

Saffron Walden is an historic market town with a magnificent Parish Church, numerous period properties and a wide tree-lined High Street. An extensive range of shops, schools, social and sporting amenities are all accessible within the town and the Golf Course and Sports Centre lie on the town's outskirts. Road links to London and Cambridge (16 miles) are accessible at Junctions 8 and 9 of the M11. Train services to London (Liverpool Street - 57 mins) run from Audley End Station about 2 miles away.

GROUND FLOOR ENTRANCE HALL Entrance door with inset glazed panels, obscure double glazed window to the side aspect, stairs leading to the first floor and doors to adjoining rooms.

SHOWER ROOM Comprising walk-in shower enclosure with electric shower, low level WC, ceramic wash basin with vanity cupboard beneath, tiled walls and obscure double glazed window to the side aspect.

LOUNGE Dual aspect with double glazed window to the front and sliding patio doors to the rear, fireplace with quartz hearth and electric fire.

KITCHEN Recently refitted with a range of base and eye level units with worktop over, stainless steel sink with mixer tap, part-tiled walls, space for dishwasher, fridge freezer, washing machine and tumble dryer, double glazed window to the rear aspect. Part-glazed door to:-

GARDEN ROOM Dual aspect with double glazed windows to the front and rear together with part-glazed doors to front and rear.

FIRST FLOOR LANDING Double glazed window to the front aspect and doors to adjoining rooms.

BEDROOM 1 Dual aspect with double glazed windows to the rear and side, built-in storage cupboard with the addition of two integrated wardrobes with drawers.

BEDROOM 2 Double glazed window to the rear aspect.

BEDROOM 3 Double glazed to the front aspect, built-in storage cupboard.

WC Obscure double glazed window to the side aspect, low level WC.

OUTSIDE To the front of the property is a paved walkway leading to the front door and the garden predominantly laid to lawn with a range of shrubs, flowers and trees bordering. The south westerly facing rear garden is predominantly laid to lawn with a patio, perfect for al fresco entertaining, and shrub borders.

DETACHED GARAGE Accessed via Hunters Way. Fitted with an up and over door, power and lighting connected and parking space in front.

VIEWINGS By appointment through the Agents.

Get in touch

8, Hill Street, Saffron Walden, CB10 1JD, Essex

View similar properties

£385,000
3 Bedroom
Rowntree Way, Saffron Walden
915 sq ft
3
1
2

Get a free instant valuation

Find out how much your property might be worth with our free valuation tool.

Value my property