More Menu

Search our site using the box above

No pages found - please try again

Residential Sales & Lettings
Property Auctions
Commercial Property
Rural
Land, Development, Planning & New Homes
Machinery & Vintage Auctions
Fine Art Auctions
  • For advice worth taking, it pays to choose Cheffins.

    Cambridge | Ely | Haverhill | Newmarket | Saffron Walden | Sutton | London

    Value my property

£600,000
3 Bedroom
Redbank Close, Newport, Saffron Walden
1511 sq ft
3
2
2

About this property

Key features
  • Modern, detached home
  • Beautifully presented throughout
  • Well-appointed kitchen/breakfast room
  • Three bedrooms
  • En suite and family bathroom
  • Landscaped garden with entertaining space
  • Off-street parking with EV charging point
  • Well-served village location
Description
A double-fronted detached house forming part of a small development in a private, no-through road. The property enjoys beautifully presented accommodation and is well-placed within walking distance of the local schools, shops and facilities.

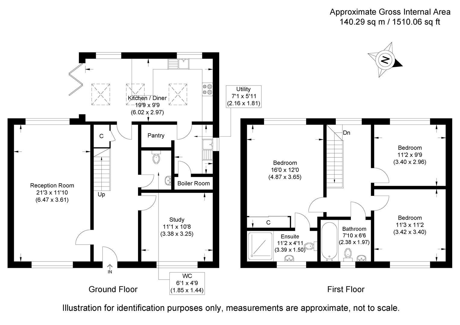
GROUND FLOOR ENTRANCE HALL A spacious and welcoming hallway with an obscure glazed entrance door, staircase rising to the first floor with deep understairs storage cupboard, polished porcelain tiled flooring and solid timber doors to the adjoining rooms.

SITTING ROOM A dual aspect room with windows to the front and rear providing a good degree of natural light and views over the terrace and garden beyond.

FAMILY ROOM/STUDY A versatile room offering a multitude of uses, dependent upon needs, with window to the front aspect.

CLOAKROOM Comprising WC with hidden cistern, vanity wash basin, heated towel rail and polished porcelain tiled flooring.

KITCHEN/BREAKFAST ROOM The rooms enjoys an abundance of natural light via a pair of windows to the rear aspect overlooking the garden, glazed bi-folding doors providing direct access to the terrace and three Velux skylights. The kitchen comprises a range of units with quartz worktop, twin bowl sink unit, appliances including induction hob, double oven, integrated fridge freezer and dishwasher and polished porcelain flooring. Door to:

UTILITY ROOM Space and plumbing for washing machine and tumble dryer with worktop space above and sink unit, wall-mounted gas fired boiler, built-in pantry and storage cupboards and obscure glazed window.

FIRST FLOOR LANDING Window to the rear aspect, solid timber doors to adjoining rooms and access to the loft space.

BEDROOM 1 A well-proportioned bedroom with window to the rear aspect overlooking the garden and views towards the nearby farmland and wooded area. Built-in wardrobe and door to:

EN SUITE Comprising walk-in shower enclosure, vanity wash basin, WC with hidden cistern, heated towel rail, part tiled walls, tiled flooring and obscure glazed window.

BEDROOM 2 Window to the front aspect.

BEDROOM 3 Window to the rear aspect overlooking the rear garden with partial views over the countryside beyond.

BATHROOM Comprising panelled bath with shower over, WC with hidden cistern, vanity wash basin, heated towel rail, part tiled walls, tiled flooring and obscure glazed window.

OUTSIDE The property is well-placed within walking distance of the local facilities, schools, shops and train station, located in a small development of similar style houses in a no-through, private road. To the side of the property is a driveway providing off-street parking with an EV charging point and a useful covered storage area. The rear garden has been landscaped by the current owners with a natural stone paved terrace, in turn leading to a lawn area with raised flower and shrub borders. In addition, there is an excellent al fresco entertaining space with a Maze covered seating area, together with an outdoor kitchen/barbecue area.

AGENT'S NOTE There is an Estate Management charge of £500 p.a. to cover the upkeep of the road and communal areas.

VIEWINGS By appointment through the Agents.

Get in touch

8, Hill Street, Saffron Walden, CB10 1JD, Essex

View similar properties

£600,000
3 Bedroom
Redbank Close, Newport, Saffron Walden
1511 sq ft
3
2
2

Get a free instant valuation

Find out how much your property might be worth with our free valuation tool.

Value my property