More Menu

Search our site using the box above

No pages found - please try again

Residential Sales & Lettings
Property Auctions
Commercial Property
Rural
Land, Development, Planning & New Homes
Machinery & Vintage Auctions
Fine Art Auctions
  • For advice worth taking, it pays to choose Cheffins.

    Cambridge | Ely | Haverhill | Newmarket | Saffron Walden | Sutton | London

    Value my property

£269,950
3 Bedroom
Guntons Close, Soham, Ely
795 sq ft
3
1
1

About this property

Key features
  • Semi Detached Family Home
  • Popular Town
  • 3 Bedrooms
  • Lounge & Kitchen/Dining Room
  • Enclosed Rear Garden
  • Driveway & Single Garage
  • Freehold / Council Tax Band B / EPC Rating C
Description
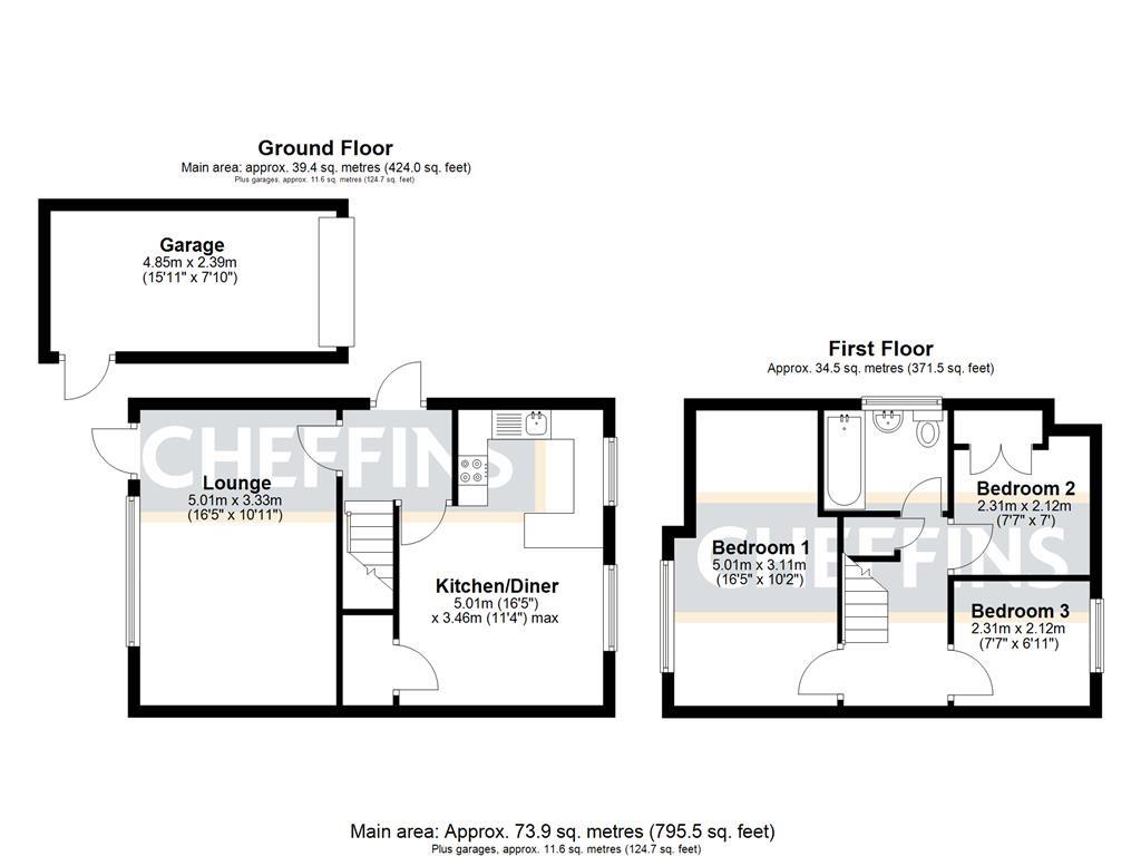
Situated in a central location within the popular Town of Soham is this established semi detached family home.

Accommodation comprises entrance hall, living room and kitchen/dining room on the ground floor, together with 3 bedrooms and a family bathroom on the first floor. Outside the property has an enclosed garden to rear, driveway parking and a single garage.

ENTRANCE HALL With front entrance door, stairs rising to the first floor, fuse board, tiled flooring. Door to:

KITCHEN / DINING ROOM With 2 double glazed windows to front, wall and base units with worktop space, integrated stainless steel sink with mixer tap, space for oven with overhead extractor hood, space for washing machine and dishwasher, partially tiled flooring, under stairs cupboard, radiator.

LIVING ROOM With double glazed window to rear, double glazed door leading through to the rear garden, radiator.

FIRST FLOOR LANDING With access to loft.

BEDROOM 1 With double glazed window to rear, radiator.

BEDROOM 2 With double glazed window to front, built-in cupboards, radiator.

BEDROOM 3 With double glazed window to front, laminate flooring, radiator.

BATHROOM With side panelled bath with overhead shower and shower screen, wash hand basin with separate taps, low level WC, tiled splashbacks, opaque glazed window to side, radiator, vinyl flooring.

OUTSIDE To the front of the property there is a small laid to lawn garden. A driveway provides off road parking and leads to the single garage.

The rear garden is fully enclosed by wooden fence panels and is predominantly laid to lawn with patio area, side gated access and door into the garage.

VIEWING ARRANGEMENTS Strictly by appointment with the Agents.

Get in touch

25, Market Place, Ely, CB7 4NP, Cambridgeshire

View similar properties

£269,950
3 Bedroom
Guntons Close, Soham, Ely
795 sq ft
3
1
1

Get a free instant valuation

Find out how much your property might be worth with our free valuation tool.

Value my property